Vendita 420.000€ - Appartamento, In evidenza
Moderno quadrilocale ristrutturato nel cuore di Celle Ligure
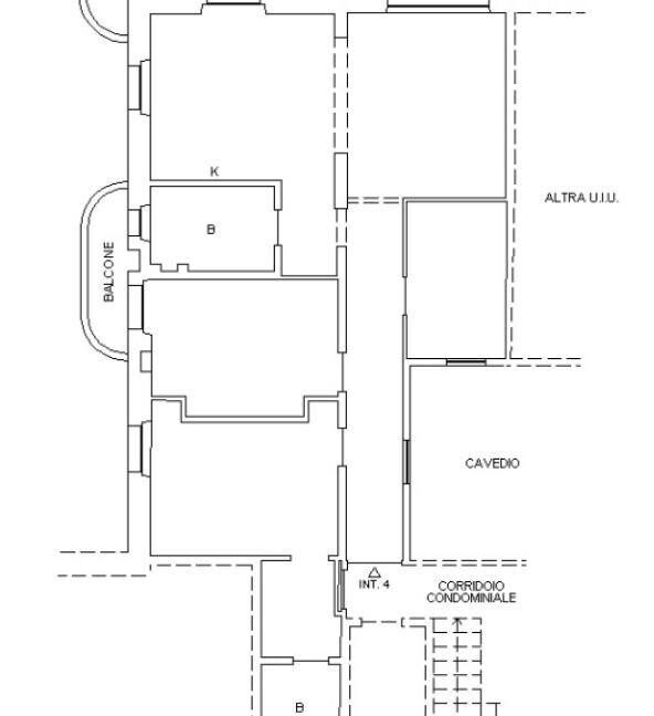
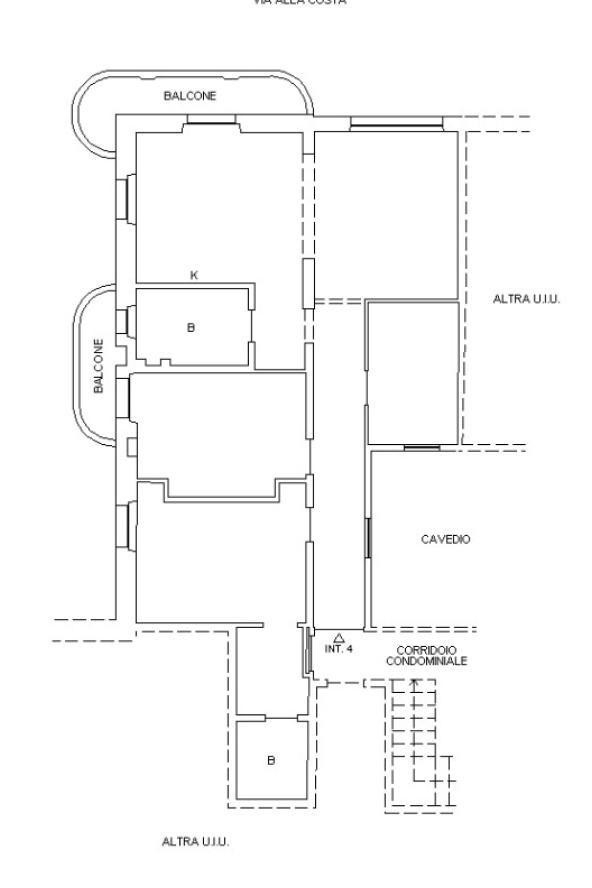
Nel pittoresco borgo di Celle Ligure, in posizione tranquilla ma comoda al centro e al mare, proponiamo in vendita un elegante appartamento completamente ristrutturato situato al secondo piano di una palazzina ordinata.
L’immobile, di circa 105 mq, offre spazi ben distribuiti e ambienti luminosi:
• un ampio soggiorno con cucina a isola a vista, perfetto per vivere e ricevere in un ambiente moderno e conviviale;
• tre camere da letto, di cui due matrimoniali e una singola;
• due bagni completi, rifiniti con gusto contemporaneo;
• due balconi, ideali per momenti di relax o per stendere comodamente.
La recente ristrutturazione integrale ha valorizzato ogni dettaglio, unendo comfort e stile in un contesto residenziale tranquillo e ben servito.
Un’ottima opportunità sia come prima casa che come residenza per le vacanze nella splendida Riviera Ligure.
Riscaldamento autonomo a radiatori e Climatizzatore Autonomo, freddo/caldo
In attesa di certificazione energetica















































